1
/
of
5
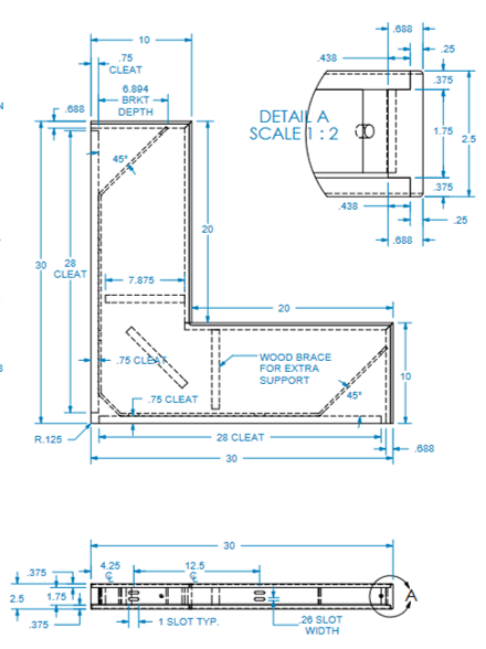
Corner Floating Shelf
Corner Floating Shelf
SKU:CAMS24-PG-100
Shipping calculated at checkout.
2 1/2" Thick and 10" Deep
Our corner floating shelves are an ideal alternative for wall corner cabinets or as a decorative element in any room in the house. Shelf ships complete with hidden corner shelf support bracket.
Heavy Duty Construction
Lap joint lock construction means your shelves will stay true and beautiful for years. Each shelf comes complete with our corner steel floating shelf bracket.










